積水ハウス 株式会社 北東北支店

コモンステージ八戸駅西

販売中
建築条件付き
1/8

県内・県外へのアクセスが良く、南向きの好立地です。
周辺には、教育施設・商業施設・医療施設が集まっており、生活の利便性が充実した街です。

物件情報

情報更新日

2026年03月31日 21:36

販売価格

980万円

間取り

土地面積

188.84 m² [57.12坪]

建物面積

106.25 m² [32.14坪]

構造

2階建て

住所

青森県八戸市尻内町八戸市都市計画事業八戸駅西区画整理事業地内101街区20

土地の権利形態

完成時期

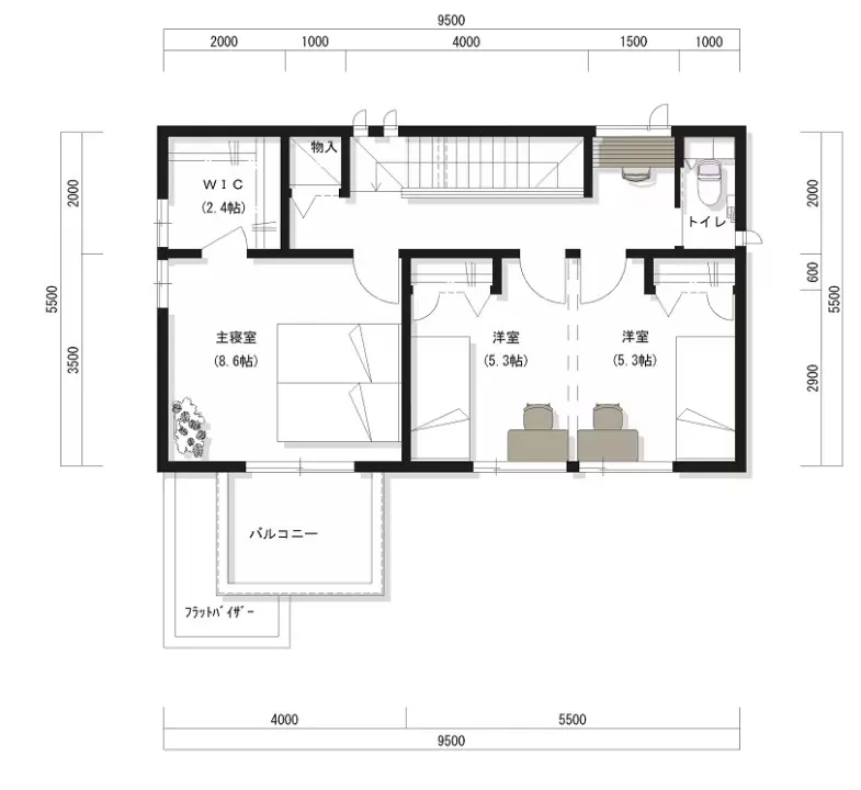
間取り

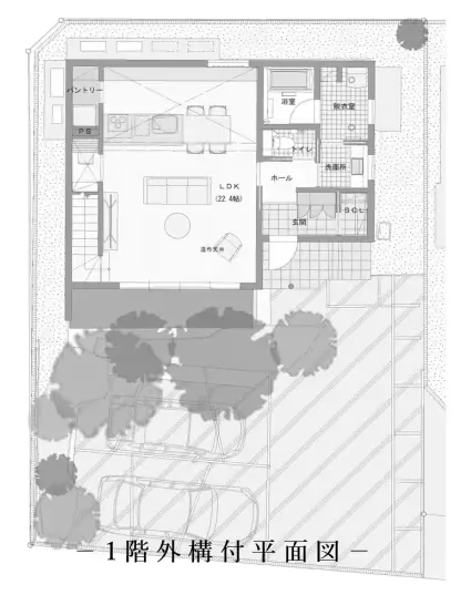
1階外構付平面図
1階外構付平面図

2階平面図
2階平面図

周辺環境

  • FLAT HACHINOHE
    FLAT HACHINOHE
    現地から1100m。 徒歩14分。(最長)
    営業時間:10:00~17:00
    令和6年8月20日
  • 八戸駅
    八戸駅
    現地から1030m。 徒歩13分。(最長)
    令和6年8月20日
  • 八戸西スマートIC
    八戸西スマートIC
    現地から2700m。 車6分。(最長)
    令和6年8月20日
  • 認定こども園八戸文化幼稚園
    認定こども園八戸文化幼稚園
    現地から1600m。 徒歩20分。(最長)
    令和6年8月20日
  • 八戸市立三条小学校
    八戸市立三条小学校
    現地から1500m。 徒歩19分。(最長)
    令和6年8月20日
  • 八戸市立三条中学校
    八戸市立三条中学校
    現地から1100m。 徒歩14分。(最長)
    令和6年8月20日
  • 西口内科
    西口内科
    現地から1400m。 徒歩18分。(最長)
    令和6年8月20日
  • マエダストア三条店
    マエダストア三条店
    現地から1600m。 徒歩20分。(最長)
    令和6年8月20日
  • ローソン八戸尻内町店
    ローソン八戸尻内町店
    現地から1700m。 徒歩22分。(最長)
    令和6年8月20日
  • 薬王堂八戸尻内町店
    薬王堂八戸尻内町店
    現地から1700m。 徒歩22分。(最長)
    令和6年8月20日

所在地MAP

物件情報

所在地

青森県八戸市尻内町八戸市都市計画事業八戸駅西区画整理事業地内101街区20

交通

JR八戸線八戸駅まで徒歩13分(最長)

土地面積

188.84 m² [57.12坪]

建物面積

106.25 m² [32.14坪]

建ぺい率・容積率

60%、200%

間取り

建物構造

106.25

駐車場

道路付け

20m アスファルト舗装 南側約20m公道

私道負担・道路

私道負担なし

負担金

電気

東北電力

上水道

公営水道(口径20mmの場合、132,000円(税込)の水道加入金有)

下水道

公共下水道

ガス

プロパンガス

都市計画

市街化区域

開発面積

用途地域

第一種住居地域

地目

宅地

土地の権利

借地権の種類・期間

取引条件の有効期限

2026.4.2

建築確認番号

R06確認建セ青青森第0616号 令和7年3月12日

制限事項

八戸市都市計画事業八戸駅西土地区画整理事業

特記事項

当分譲地は、良好なまちなみの形成を図るため、「まちなみガイドライン」を作成しています。

販売価格

980万円

販売区画・戸数

1戸

総区画・戸数

2戸

造成完了時期

完成時期

引き渡し時期

売主

積水ハウス株式会社

取引形態

土地建物売主

学区情報

備考

情報更新日

2026/03/31

次回更新予定日

2026/04/14

販売会社情報

社名

積水ハウス 株式会社 北東北支店

ブランド名

所在地

岩手県盛岡市盛岡駅前北通1-10橋市盛岡ビル7F

営業時間

9:00~18:00

定休日

毎週火・水曜日、祝日

電話番号

019-601-6788

FAX

019-604-6111

建築許可番号

建設許可番号 国土交通大臣免許(特・般-2)第5295号

宅建業免許番号

宅建業免許番号 国土交通大臣免許(15)第540号

所属団体名及び公正取引協議会加盟事業者

閲覧履歴

arrow