積水ハウス 株式会社 北東北支店

コモンステージ長根 2号地 分譲住宅

販売中
即引渡し可
分譲地
1/8

生活利便施設が充実した八戸市長根にて分譲住宅を販売中

教育施設、商業施設、公園が身近に揃う街、八戸市長根。
積水ハウスのこだわり邸宅で豊かな暮らしが実現できます

物件情報

情報更新日

2026年03月31日 21:09

販売価格

5331万円

間取り

土地面積

244.59 m² [73.99坪]

建物面積

106.25 m² [32.14坪]

構造

2階建て

住所

青森県八戸市長根2丁目12番23、12番25

土地の権利形態

完成時期

2024年10月

間取り

1階外構付平面図
1階外構付平面図

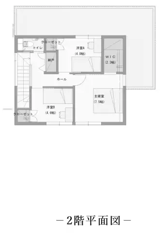
2階平面図
2階平面図

周辺環境

  • 長根公園
    長根公園
    現地から1020m。 徒歩13分。(最長)
    施設:屋内スケート場、体育館、市民プール、アイスホッケーリンク、野球場、武道館、相撲場、弓道場
    住所:八戸市大字売市輿遊下3、大字糠塚字下屋敷9-1
    2024年6月撮影
  • 認定こども園 南売市保育園
    認定こども園 南売市保育園
    現地から780m。 徒歩10分。(最長)
    保育理念:自然の中での豊かな体験や遊びを通して『生きる力』の基礎を育む
    住所:八戸市売市1丁目8-10
    2024年6月撮影
  • 八戸市立八戸小学校
    八戸市立八戸小学校
    現地から310m。 徒歩4分。(最長)
    1873年9月創立
    教育目標:誇りをもち主体的に生きる子
    住所:青森県八戸市長根3丁目24-1
    2024年6月撮影
  • 八戸市立第二中学校
    八戸市立第二中学校
    現地から520m。 徒歩7分。(最長)
    1948年4月創立
    教育目標:心豊かで、たくましく、進んで学ぶ生徒
    住所:八戸市長根3丁目23-1
    2024年6月撮影
  • むらかみ脳神経クリニック
    むらかみ脳神経クリニック
    現地から430m。 徒歩6分。(最長)
    診療時間:
    月・火・水・金 9時~12時/14時~18時
    木・土 9時~12時      
    休診日:日・祝日
    住所:八戸市長根1丁目17-20
    2024年6月撮影
  • 滝沢小児科内科医院
    滝沢小児科内科医院
    現地から1330m。 徒歩17分。(最長)
    診療時間:
    月~金 9時~13時/15時~18時半
    土 9時~13時
    ※曜日・時間により診察内容異なる    
    休診日:日・祝日
    住所:八戸市根城5丁目2-16
    2024年6月撮影
  • JR東日本 本八戸駅
    JR東日本 本八戸駅
    現地から1280m。 徒歩16分。(最長)
    住所:八戸市内丸1丁目6
    2024年6月撮影
  • 青森みちのく銀行 売市支店
    青森みちのく銀行 売市支店
    現地から980m。 徒歩13分。(最長)
    窓口営業時間:9時~15時
    八戸市売市3丁目2-8
    2025年1月撮影
  • マエダストア 売市店
    マエダストア 売市店
    現地から800m。 徒歩10分。(最長)
    営業時間:9時~22時
    住所:八戸市売市4丁目6-10
    2024年6月撮影
  • ローソン 八戸売市長根店
    ローソン 八戸売市長根店
    現地から370m。 徒歩5分。(最長)
    住所:八戸市長根3丁目8-1
    2024年6月撮影

所在地MAP

物件情報

所在地

青森県八戸市長根2丁目12番23、12番25

交通

JR八戸線本八戸駅まで徒歩16分(最長)

土地面積

244.59 m² [73.99坪]

建物面積

106.25 m² [32.14坪]

建ぺい率・容積率

%、%

間取り

建物構造

木造2階建(軸組工法)

駐車場

道路付け

12m アスファルト舗装 北東側 約12.0m公道(アスファルト舗装)

私道負担・道路

私道負担なし(但し、土地面積に通路部分33.76平方メートル含みます。)

負担金

電気

東北電力株式会社

上水道

公営水道(水道分担金は売買金額に含む)

下水道

公共下水道

ガス

都市ガス

都市計画

市街化区域

開発面積

用途地域

第二種中高層住居専用地域

地目

土地の権利

借地権の種類・期間

取引条件の有効期限

2026.4.2

建築確認番号

R06確認建セ青青森第0616号 令和7年3月12日

制限事項

特記事項

●通路部分については通行地役権を設定することとします。また維持管理は購入者の負担となります。 土地面積:210.83平方メートル/通路面積:33.76平方メートル ●埋蔵文化財包蔵地内(熊野堂遺跡)調査済 ●当分譲地は、良好なまちなみの形成を図るため、「まちなみガイドライン」を作成しています。

販売価格

5331万円

販売区画・戸数

1戸

総区画・戸数

2戸

造成完了時期

完成時期

2024年10月

引き渡し時期

即引き渡し可能(2)

売主

積水ハウス株式会社

取引形態

土地建物売主

学区情報

青森市立大野小学校
青森市立南中学校

備考

情報更新日

2026/03/31

次回更新予定日

2026/04/14

販売会社情報

社名

積水ハウス 株式会社 北東北支店

ブランド名

所在地

岩手県盛岡市盛岡駅前北通1-10橋市盛岡ビル7F

営業時間

9:00~18:00

定休日

毎週火・水曜日、祝日

電話番号

019-601-6788

FAX

019-604-6111

建築許可番号

建設許可番号 国土交通大臣免許(特・般-2)第5295号

宅建業免許番号

宅建業免許番号 国土交通大臣免許(15)第540号

所属団体名及び公正取引協議会加盟事業者

閲覧履歴

arrow