住宅会社

22

件

施工事例

108

件

イベント

27

件

土地・建売

22

件

heart
件
お気に入り

お気に入り

title
工務店・ハウスメーカー 工務店・ハウスメーカーを探す 施工事例 施工事例を見る 住宅イベント 住宅イベントに行く モデルハウス モデルハウスを見る リフォーム・リノベーション リフォーム・リノベーション事例を見る 土地・建売 土地・建売を探す 一括資料請求 一括資料請求
TOPへ戻る
工務店・ハウス
メーカーを探す
施工事例を
見る
住宅イベントに
行く
モデルハウスを
見る
リノベーション・
リフォーム事例を見る
土地・建売を
探す
  1. イエタッタ青森
  2. 住宅イベント
  3. 株式会社パルコホーム
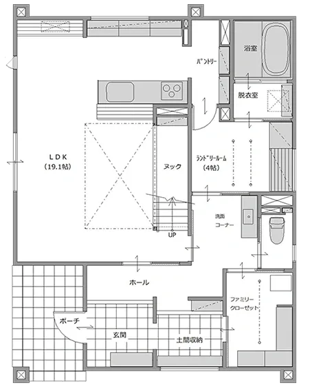
  4. 家事1階完結型の神動線プラン! 今体感すべき高性能全館空調と家事ラク設計

株式会社パルコホーム

家事1階完結型の神動線プラン! 今体感すべき高性能全館空調と家事ラク設計

ring

青森県青森市

予約限定特典つき
予約必要です

青森市初のモデルハウスが遂にオープン!
夏はさらりと過ごしやすく、冬は足元から暖かい次世代型全館空調【AIR LOOP】も体感できる、極寒の北東北に根差した高性能&高断熱、長期に渡って安心・安全を担保した「ママ楽の家」モデルハウスです!
家事1階完結型の神動線プランで、毎日の快適な暮らしが実現します。
3年連続東北№1のパルコホームが贈る、考え抜かれた収納計画と家事動線を是非ご見学ください!

1階床面積74.00m2(22.39坪)
2階床面積36.00m2(10.89坪)
延床面積110.00m2(33.28坪)
ポーチ6.00m2(1.82坪)
吹抜け6.00m2(1.82坪)
工事施工面積122.00m2(36.91坪)

Main Image
⟨
⟩
1/3

家事1階完結型の神動線プラン! 今体感すべき高性能全館空調と家事ラク設計

青森市初のモデルハウスが遂にオープン!
夏はさらりと過ごしやすく、冬は足元から暖かい次世代型全館空調【AIR LOOP】も体感できる、極寒の北東北に根差した高性能&高断熱、長期に渡って安心・安全を担保した「ママ楽の家」モデルハウスです!
家事1階完結型の神動線プランで、毎日の快適な暮らしが実現します。
3年連続東北№1のパルコホームが贈る、考え抜かれた収納計画と家事動線を是非ご見学ください!

1階床面積74.00m2(22.39坪)
2階床面積36.00m2(10.89坪)
延床面積110.00m2(33.28坪)
ポーチ6.00m2(1.82坪)
吹抜け6.00m2(1.82坪)
工事施工面積122.00m2(36.91坪)

イベント情報

期間

2026/04/02 〜 2026/04/30

時間

10:00-17:00

場所

青森県青森市浪館

注意事項

ご来場前日のご予約は15時までとなります。15時以降はお電話にて直接ご予約ください
青森支店(担当:坂本)(080-6319-2335)

2025.

8

月

見学希望日を選んでください

日

日

見学時間を選んでください

来場・予約特典
vrb

【ギフトカード進呈について】

一家族様一回限りです。
景品は予告なく変更となる可能性がございます。また、なくなり次第終了となります。
景品は後日お渡しとなる場合がございます。
次の方が対象となります。
パルコホームへ初めてご来場され、弊社公式SNSをご登録いただける方 / ご来場前日15時までにWebまたはTelにてご予約された方 / アンケートにご記入いただける方 / 弊社で建築をご検討いただける方

電話で
問い合わせる
イベント詳細情報

イベント情報

期間

2026/04/02 〜 2026/04/30

時間

10:00-17:00

場所

青森県青森市浪館

注意事項

ご来場前日のご予約は15時までとなります。15時以降はお電話にて直接ご予約ください
青森支店(担当:坂本)(080-6319-2335)

電話で
問い合わせる
来場・予約特典
vrb

【ギフトカード進呈について】

一家族様一回限りです。
景品は予告なく変更となる可能性がございます。また、なくなり次第終了となります。
景品は後日お渡しとなる場合がございます。
次の方が対象となります。
パルコホームへ初めてご来場され、弊社公式SNSをご登録いただける方 / ご来場前日15時までにWebまたはTelにてご予約された方 / アンケートにご記入いただける方 / 弊社で建築をご検討いただける方

  • 会社情報
  • イベント4件
  • 施工事例11件
  • モデルハウス7件
  • 土地・建売1件
  • 公式サイト

閲覧履歴

arrow
  • 価格は物件の代金総額を表示しており、消費税が課税される場合は税込み価格です。 (1000円未満は切り上げ。)
  • 写真に写っている、またはパース(絵)や間取り図に描かれている家具や車などは、特にコメントがない場合、販売価格に含まれません。
  • 敷地権利が定期借地権のものは価格に権利金を含みます。
  • 建築条件付き土地価格には、建物価格は含まれません。
  • 物件情報は、原則として情報提供日の2日前に最終確認した情報です。
  • 完成予想図はいずれも外構、植栽、外観等実際のものとは多少異なることがあります。
  • 建築条件付き土地とは、その土地に建築する建物の建築請負契約が一定期間内に成立することを条件として売買される土地を指します。建築請負契約の成立に向けて、土地購入者と施工会社との間で建物の設計プランを協議するため、購入者が希望する建物の設計に関する十分な交渉期間が設定されます。この交渉期間内に希望を満たすプランが実現できるかどうかを確認し、契約の可否を判断します。なお、この期間はおおむね3ヶ月程度とされています。もし購入者が納得のいくプランを得られず、建築請負契約が成立しなかった場合には、土地売買契約は白紙となり、土地代金や手付金など、契約にかかった費用は名目に関係なく全額返金されます。
  • 建築条件土地の情報内に掲載されている、建物プラン例は、土地購入者の設計プランの参考の一例であって、プランの採用可否は任意です。
logo
instagram x youtube pinterest tiktok

工務店・ハウスメーカーを探す

- 施工対応エリアから探す

青森市 | 弘前市 | 八戸市 | 黒石市 | 五所川原市 | 十和田市 | 三沢市 | むつ市 | つがる市 | 平川市 | 東津軽郡 | 西津軽郡 | 中津軽郡 | 南津軽郡 | 北津軽郡 | 上北郡 | 下北郡 | 三戸郡

- 取扱住宅から探す

注文住宅 | 規格住宅 | 建売住宅

施工事例を見る

- カテゴリーから探す

新築 | リフォーム | リノベーション

住宅イベントへ行く

- カテゴリーから探す

完成見学会 | モデルハウス見学会 | イベント | セミナー | オンラインイベント | 相談会 | リフォーム・リノベーション

モデルハウスへ行く

- エリアから探す

青森市 | 弘前市 | 八戸市 | 黒石市 | 五所川原市 | 十和田市 | 三沢市 | むつ市 | つがる市 | 平川市 | 東津軽郡 | 西津軽郡 | 中津軽郡 | 南津軽郡 | 北津軽郡 | 上北郡 | 下北郡 | 三戸郡

- 属性から探す

販売中 | 販売予定 | 常設展示場 | 常時見学可 | 宿泊体験可

土地を探す

- 所在地から探す

青森市 | 弘前市 | 八戸市 | 黒石市 | 五所川原市 | 十和田市 | 三沢市 | むつ市 | つがる市 | 平川市 | 東津軽郡 | 西津軽郡 | 中津軽郡 | 南津軽郡 | 北津軽郡 | 上北郡 | 下北郡 | 三戸郡

建売住宅を探す

- 所在地から探す

青森市 | 弘前市 | 八戸市 | 黒石市 | 五所川原市 | 十和田市 | 三沢市 | むつ市 | つがる市 | 平川市 | 東津軽郡 | 西津軽郡 | 中津軽郡 | 南津軽郡 | 北津軽郡 | 上北郡 | 下北郡 | 三戸郡

工務店・ハウスメーカーを探す >

- 施工対応エリアから探す

青森市 | 弘前市 | 八戸市 | 黒石市 | 五所川原市 | 十和田市 | 三沢市 | むつ市 | つがる市 | 平川市 | 東津軽郡 | 西津軽郡 | 中津軽郡 | 南津軽郡 | 北津軽郡 | 上北郡 | 下北郡 | 三戸郡

- 取扱住宅から探す

注文住宅 | 規格住宅 | 建売住宅

施工事例を見る >

- カテゴリーから探す

新築 | リフォーム | リノベーション

住宅イベントへ行く >

- カテゴリーから探す

完成見学会 | モデルハウス見学会 | イベント | セミナー | オンラインイベント | 相談会 | リフォーム・リノベーション

モデルハウスへ行く >

- エリアから探す

青森市 | 弘前市 | 八戸市 | 黒石市 | 五所川原市 | 十和田市 | 三沢市 | むつ市 | つがる市 | 平川市 | 東津軽郡 | 西津軽郡 | 中津軽郡 | 南津軽郡 | 北津軽郡 | 上北郡 | 下北郡 | 三戸郡

- 属性から探す

販売中 | 販売予定 | 常設展示場 | 常時見学可 | 宿泊体験可

土地を探す >

- 所在地から探す

青森市 | 弘前市 | 八戸市 | 黒石市 | 五所川原市 | 十和田市 | 三沢市 | むつ市 | つがる市 | 平川市 | 東津軽郡 | 西津軽郡 | 中津軽郡 | 南津軽郡 | 北津軽郡 | 上北郡 | 下北郡 | 三戸郡

建売住宅を探す >

- 所在地から探す

青森市 | 弘前市 | 八戸市 | 黒石市 | 五所川原市 | 十和田市 | 三沢市 | むつ市 | つがる市 | 平川市 | 東津軽郡 | 西津軽郡 | 中津軽郡 | 南津軽郡 | 北津軽郡 | 上北郡 | 下北郡 | 三戸郡

一括資料請求

一括資料請求

登録会社一覧

サイトマップ

利用規約

プライバシーポリシー

お問い合わせ

運営会社

ご掲載を希望される方へ

岩手県版

guideMap_i

宮城県版

guideMap_i

山形県版

guideMap_i

福島県版

guideMap_i

茨城県版

guideMap_i

富山県版

guideMap_i

石川県版

guideMap_i

関西版

guideMap_i

愛媛県版

guideMap_i

鹿児島県版

guideMap_i

青森県の工務店 ハウスメーカー 情報サイト © IETATTA

サイトマップ

利用規約

プライバシーポリシー

お問合せ

運営会社

ご掲載を希望される方へ

登録会社一覧

イエタッタ青森 > 住宅イベント > 株式会社パルコホーム > 家事1階完結型の神動線プラン! 今体感すべき高性能全館空調と家事ラク設計